Poslat e-mailem

Byt 2+kk/L,G, Praha 9 Letňany, ul. Tupolevova

Vaše jméno
Váš e-mail
Jméno příjemce
E-mail příjemce
Vzkaz
 
zavřít

Hledám nemovitost / Uvažuji o koupi / Byt / Byt 2+kk/L,G, Praha 9 Letňany, ul. Tupolevova

Byt 2+kk/L,G, Praha 9 Letňany, ul. Tupolevova

Číslo nabídky: N03450

Typ   prodej
Nemovitost   Byty
Okres   Hlavní město Praha
Lokalita   Praha 18 - Letňany
Ulice   Tupolevova
Plocha   55 m2
Konstrukce budovy   Skeletová
Forma vlastnictví   Osobní
Číslo podlaží   5
Počet podlaží   5
Sklep   Ano
Stav objektu   Novostavba
Cena - prodej9 100 000 Kč za nemovitost
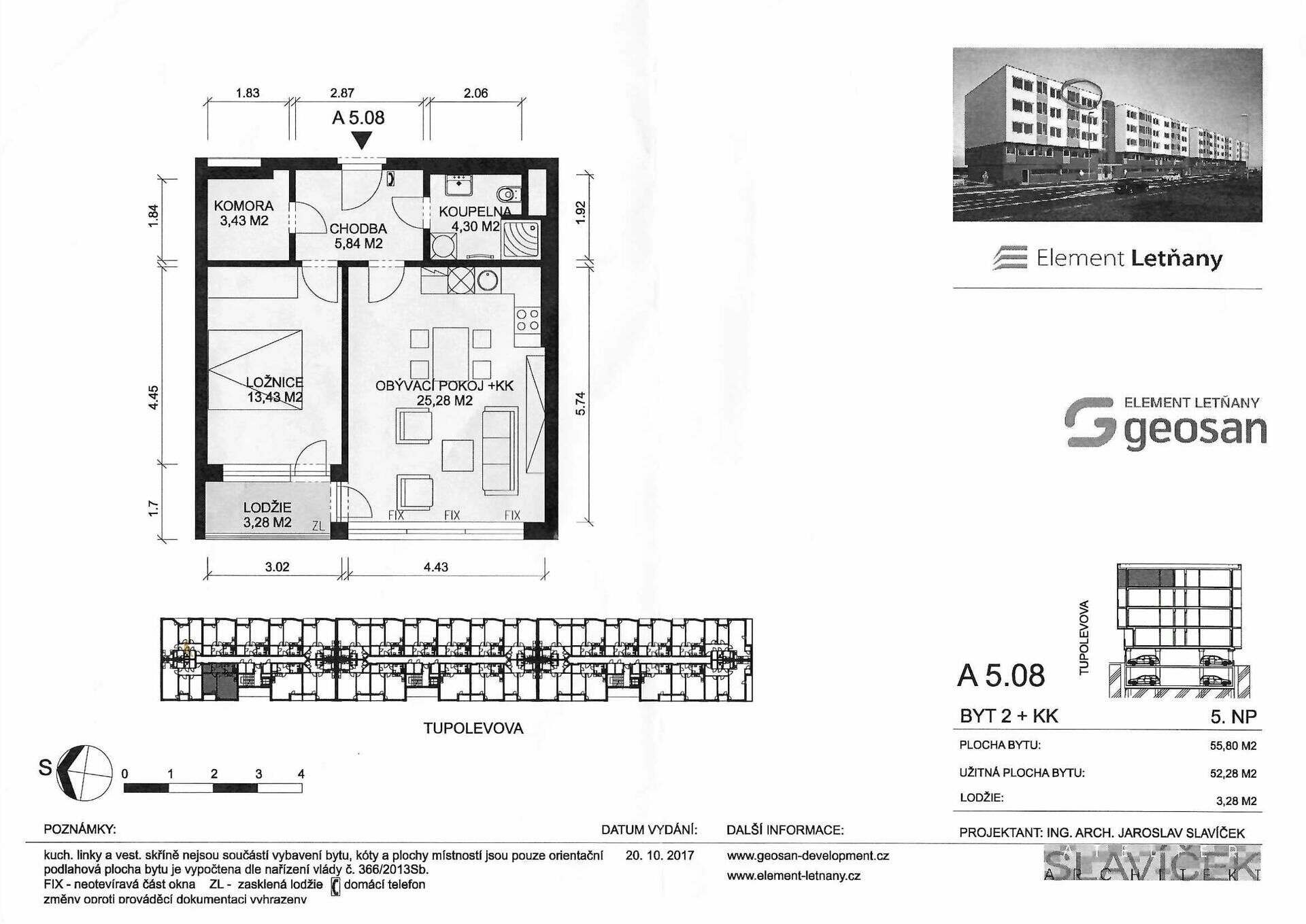
Nabízíme ke koupi velmi pěkně řešený byt 2+kk s lodžií, komorou v bytě, komorou na patře a garážovým stáním v novostavbě z roku 2019. Byt je tvořený prostorným světlým obývacím pokojem s kuchyňským koutem (25,28m2), který je vybavený moderní kuchyňskou linkou vč. všech spotřebičů. Z obývacího pokoje je vstup na zasklenou lodžii (3,28 m2) orientovanou na západ. Ložnice (13,43 m2) má samostatný vstup z předsíně a má vstup také na lodžii. Díky tomu je velmi dobře odhlučněna od hlavní Tupolevovy ulice. U předsíně je vstup do komory, která je v současné době zařízena jako šatna. Koupelna je se sprchovým koutem a WC. Hned vedle bytu je komora/sklep o výměře 3,8 m2. V suterénu domu je garážové stání. Byt má nainstalovánu klimatizaci a je zde rekuperace. Dům je umístěn v docházkové vzdálenosti od obchodního centra Letňany, 2 zastávky autobusem na metro Letňany. Doporučujeme. K nastěhování je byt od 1.5.2026.
Chci více informací o této nemovitosti
Jméno:
Telefon:

Realitní kancelář Honzík
Navrátilova 1559/9, Praha 1
tel.: 296 326 086
mob.: 724 593 303
mail: honzik@honzik.cz

© 2011-2014 HONZIK.CZ